Beschrijving
De Interflex blokhut 3030L is een compacte en stijlvolle tuinberging, perfect geschikt voor de kleinere tuin. Het moderne lessenaarsdak zorgt voor een strakke uitstraling en geeft uw tuin een eigentijdse sfeer.
Deze blokhut is vervaardigd uit hoogwaardig Noord-Europees vurenhout en wordt onbehandeld geleverd. Hierdoor heeft u volledige vrijheid om het hout af te werken in een kleur en behandeling naar wens. Met de juiste nabehandeling is het hout goed beschermd tegen weersinvloeden en gaat de blokhut jarenlang mee. De wind- en waterdichte hoekverbindingen zorgen voor een stevige constructie en houden uw opgeslagen spullen droog en veilig.
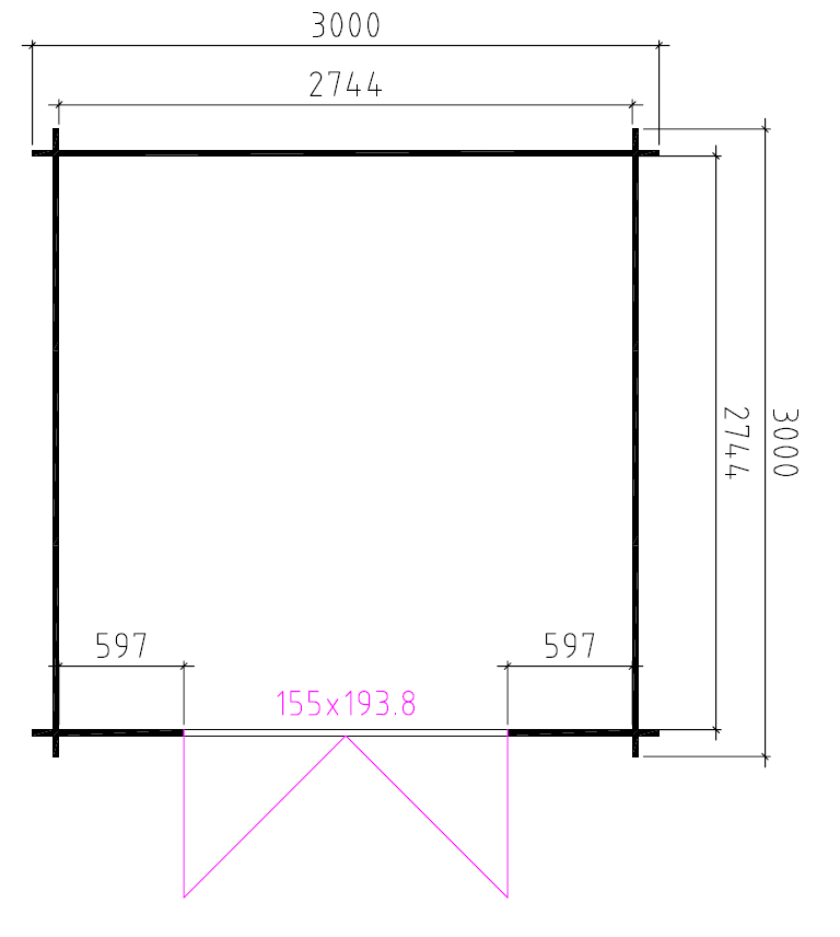
Met een afmeting van 300 x 300 cm biedt de blokhut voldoende ruimte voor het opbergen van tuingereedschap, fietsen of tuinkussens. De dubbele deur met enkel glas zorgt voor een ruime doorgang en extra lichtinval in de blokhut.
De Interflex 3030L wordt geleverd met een duidelijke bouwtekening, waardoor u de blokhut eenvoudig zelf kunt monteren. Voor een duurzame en nette dakafwerking kunt u optioneel dakshingles toevoegen in een kleur naar keuze.



